Casa indipendente in vendita

Diamante, Via Negroni P.
€ 70.000
1 locale 1 locale
32 Mq 32 Mq
1 bagno 1 bagno

Casa indipendente in vendita

Diamante, Via Negroni P.

Descrizione annuncio

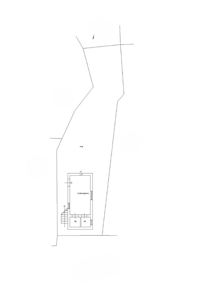
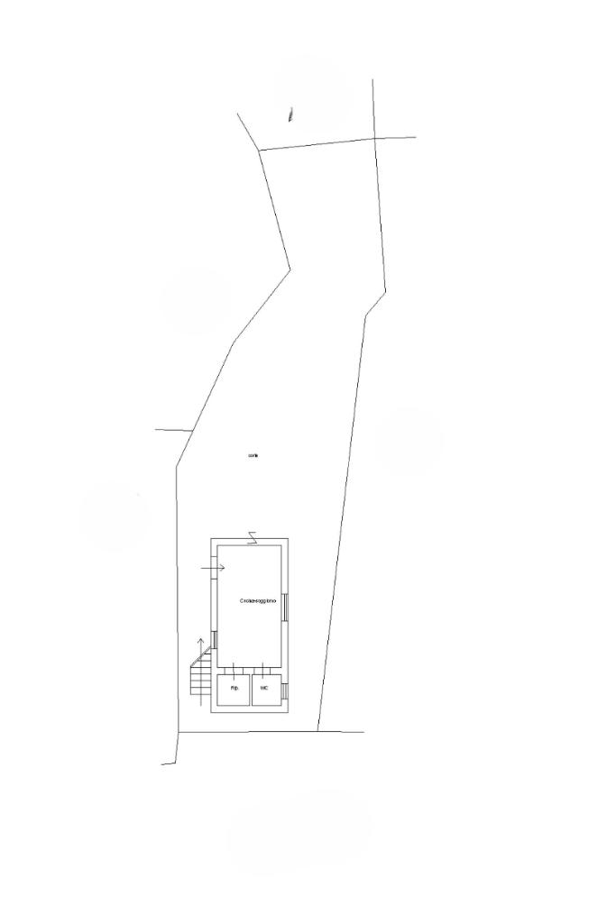
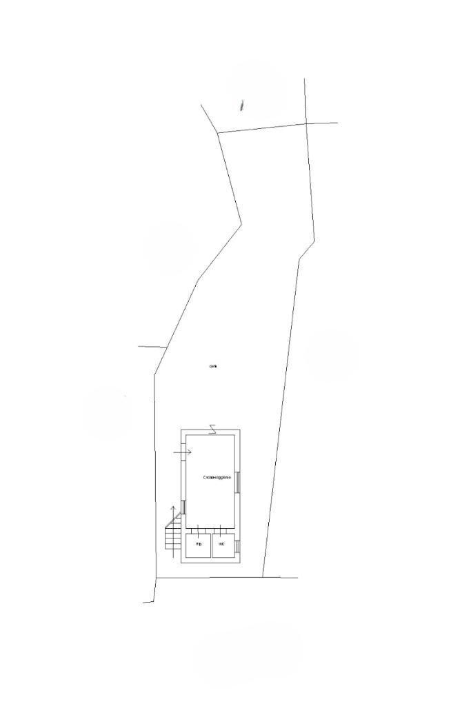
In una delle zone più tranquille e riservate di Diamante, precisamente in Contrada Fragalletto, proponiamo in vendita una graziosa casa indipendente con terreno di circa 150 mq, perfetta per chi desidera vivere a contatto con la natura senza rinunciare alla comodità dei servizi e alla vicinanza del mare.

L’abitazione si sviluppa su due livelli e presenta ambienti luminosi e ben distribuiti. Al piano principale troviamo un unico ambiente accogliente con angolo cottura e zona notte, organizzato in modo funzionale, oltre a un bagno finestrato con doccia. Al livello superiore, troviamo il sottotetto che offre uno spazio aggiuntivo versatile, utilizzabile secondo le proprie esigenze.

Gli interni sono stati ristrutturati e si presentano in ottime condizioni, pronti per essere abitati sin da subito. La casa gode di un’ottima luminosità naturale, che rende gli ambienti caldi e accoglienti in ogni momento della giornata.

All’esterno, la proprietà è circondata da un giardino privato con alberi da frutto, uno spazio perfetto per trascorrere piacevoli momenti all’aria aperta, organizzare pranzi e cene estive o semplicemente rilassarsi immersi nel verde. Completa la soluzione un comodo posto auto.

La posizione è uno dei punti di forza dell’immobile: il mare e i principali servizi sono facilmente raggiungibili, rendendo questa casa ideale sia come abitazione principale sia come casa vacanze o investimento.

Per visionare la nostra proposta basta chiamare in agenzia e fissare un appuntamento. Inoltre per chi dovesse acquistarlo mediante l'ottenimento di un mutuo un team di esperti nel settore creditizio sarà in grado di trovare la giusta soluzione per ogni esigenza finanziaria: sono i nostri consulenti della Kiron, società di mediazione creditizia del Gruppo Tecnocasa. In qualsiasi momento una consulenza gratuita e personalizzata per i nostri clienti.


Non dimenticarti di seguirci anche sul nostro profilo instagram per rimanere sempre connesso sulle ultime novità: @tecnocasa_diamante.

Mostra tutto

Nelle vicinanze

Trasporto pubblico Trasporto pubblico
Diamante-Buonvicino
Diamante-Buonvicino
140 m
Scuole Scuole
ic diamante
240 m
Farmacia Farmacia
Farmacia De Luna Antonio
300 m
Negozi Negozi
Negozi
210 m
Ristoranti Ristoranti
itacarè
370 m
pizzeria il giardino
620 m
Ristoranti
710 m
L'Approdo
920 m
il Casale Vecchia Fattoria
1,8 Km
Mostra tutto

Caratteristiche

Rif.:
61157378
Piano:
Su più livelli di 2
Totale piani:
2
Posti auto:
1
Camere da letto:
1
Arredamento:
Assente
Mostra tutto
Prezzo Prezzo
€ 70.000
Rata mutuo Rata mutuo
€ 330 / mese
Spese annue Spese annue
€ 0
Proponi il tuo prezzoProponi il tuo prezzo

Classe Energetica

Questo immobile è esente da classe energetica
Anno di costruzione:
1980
Riscaldamento:
Assente

Ti interessa visionare l'immobile?

Fissa un appuntamento  Fissa un appuntamento

Richiedi informazioni

Clicca su Leggi per aprire l'informativa
* Questi campi sono obbligatori

Calcola il tuo mutuo

Semplice e senza impegno
Anticipo

( % )
Mutuo

( % )

pochi semplici passi

inserisci i tuoi dati
Questionario completato
Grazie per aver richiesto un appuntamento senza impegno con un nostro Consulente del Credito e Assicurativo.

Hai inserito correttamente tutti i dati necessari e a breve riceverai una e-mail con un link da convalidare per inviare i tuoi dati.
Affiliato
Studio Diamante Srl
Via Carlo Alberto Dalla Chiesa, 2 87023 Diamante (CS)

Il nostro staff


  • Guerino Martino
    Affiliato
Via Carlo Alberto Dalla Chiesa, 2 87023 Diamante (CS)
Zona: Diamante
Mostra su mappa
Orari: MATTINA: 9:00 - 13:00 POMERIGGIO: 15:30 - 19:30
Affiliato
Studio Diamante Srl
Via Carlo Alberto Dalla Chiesa, 2 87023 Diamante (CS)

2026 Tecnocasa Franchising S.p.A. - P. IVA 08365160152 - Via Monte Bianco 60/A 20089 Rozzano (MI). Ogni agenzia ha un proprio titolare ed è autonoma. Privacy policy | Policy utilizzo | Cookie policy