Casa indipendente in vendita

Maierà, Contrada Vrasi - Vrasi
€ 79.000
6 locali 6 locali
205 Mq 205 Mq
1 bagno 1 bagno

Casa indipendente in vendita

Maierà, Contrada Vrasi - Vrasi

Descrizione annuncio

In contrada Vrasi, nel comune di Maierà, al confine con Diamante e a soli 3 km dal centro di uno dei borghi più caratteristici della costa tirrenica, proponiamo in vendita una casa indipendente su due livelli, perfetta per chi cerca tranquillità, spazio e natura senza rinunciare alla vicinanza al mare e ai servizi.

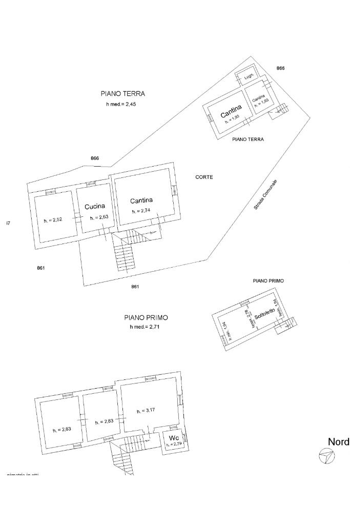
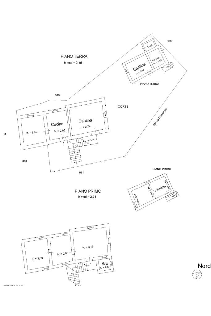
Al piano terra troviamo una cucina abitabile con camino, ideale per vivere momenti conviviali in un’atmosfera calda e accogliente, affiancata da un soggiorno funzionale. Sempre al piano terra è presente un magazzino, comodo da utilizzare come ripostiglio, lavanderia o spazio multifunzione, in base alle proprie esigenze.

La scala esterna conduce al primo piano, dove si apre una spaziosa zona giorno, due camere da letto luminose e un bagno. Gli ambienti sono ariosi e ben esposti, perfetti per godersi la quiete e la luce del luogo.

All’esterno, la casa dispone di una grande corte privata, ideale per rilassarsi, pranzare all’aperto o trascorrere del tempo in famiglia. È presente anche un secondo magazzino esterno, utile per chi necessita di ulteriore spazio. A completare la proprietà, un terreno di circa 300 mq, situato poco distante dalla casa, perfetto per coltivare, piantare alberi da frutto o semplicemente vivere il verde in piena libertà.

Una soluzione ideale sia come prima casa che come rifugio estivo, immersa nella tranquillità della campagna ma a soli 3 km dal centro di Diamante e dalle sue splendide spiagge.

Per visionare la nostra proposta basta chiamare in agenzia e fissare un appuntamento. Inoltre per chi dovesse acquistarlo mediante l'ottenimento di un mutuo un team di esperti nel settore creditizio sarà in grado di trovare la giusta soluzione per ogni esigenza finanziaria: sono i nostri consulenti della Kiron, società di mediazione creditizia del Gruppo Tecnocasa. In qualsiasi momento una consulenza gratuita e personalizzata per i nostri clienti.


Non dimenticarti di seguirci anche sul nostro profilo instagram per rimanere sempre connesso sulle ultime novità: @tecnocasa_diamante.

Mostra tutto

Nelle vicinanze

Trasporto pubblico Trasporto pubblico
Diamante-Buonvicino
Diamante-Buonvicino
1,6 Km
Scuole Scuole
ic diamante
1,7 Km
Farmacia Farmacia
Farmacia De Luna Antonio
1,8 Km
Negozi Negozi
Negozi
1,7 Km
Ristoranti Ristoranti
pizzeria il giardino
1,9 Km
itacarè
1,9 Km
Ristoranti
2,0 Km
L'Approdo
2,2 Km
il Casale Vecchia Fattoria
2,5 Km
Mostra tutto

Caratteristiche

Rif.:
61118974
Piano:
2 di 2 (Piano su più livelli)
Posti auto:
2
Balconi:
1
Camere da letto:
3
Arredamento:
Assente
Mostra tutto
Prezzo Prezzo
€ 79.000
Rata mutuo Rata mutuo
€ 375 / mese
Spese annue Spese annue
€ 0
Proponi il tuo prezzoProponi il tuo prezzo

Classe Energetica

Questo immobile è esente da classe energetica
Anno di costruzione:
1967
Riscaldamento:
Assente

Ti interessa visionare l'immobile?

Fissa un appuntamento  Fissa un appuntamento

Richiedi informazioni

Clicca su Leggi per aprire l'informativa
* Questi campi sono obbligatori

Calcola il tuo mutuo

Semplice e senza impegno
Anticipo

( % )
Mutuo

( % )

pochi semplici passi

inserisci i tuoi dati
Questionario completato
Grazie per aver richiesto un appuntamento senza impegno con un nostro Consulente del Credito e Assicurativo.

Hai inserito correttamente tutti i dati necessari e a breve riceverai una e-mail con un link da convalidare per inviare i tuoi dati.
Affiliato
Studio Diamante Srl
Via Carlo Alberto Dalla Chiesa, 2 87023 Diamante (CS)

Il nostro staff


  • Guerino Martino
    Affiliato
Via Carlo Alberto Dalla Chiesa, 2 87023 Diamante (CS)
Zona: Diamante
Mostra su mappa
Orari: MATTINA: 9:00 - 13:00 POMERIGGIO: 15:30 - 19:30
Affiliato
Studio Diamante Srl
Via Carlo Alberto Dalla Chiesa, 2 87023 Diamante (CS)

2026 Tecnocasa Franchising S.p.A. - P. IVA 08365160152 - Via Monte Bianco 60/A 20089 Rozzano (MI). Ogni agenzia ha un proprio titolare ed è autonoma. Privacy policy | Policy utilizzo | Cookie policy