Box / posti auto in vendita

Santa Maria Del Cedro, Corso Del Tirreno
€ 45.000
46 Mq 46 Mq
1 bagno 1 bagno

Box / posti auto in vendita

Santa Maria Del Cedro, Corso Del Tirreno

Descrizione annuncio

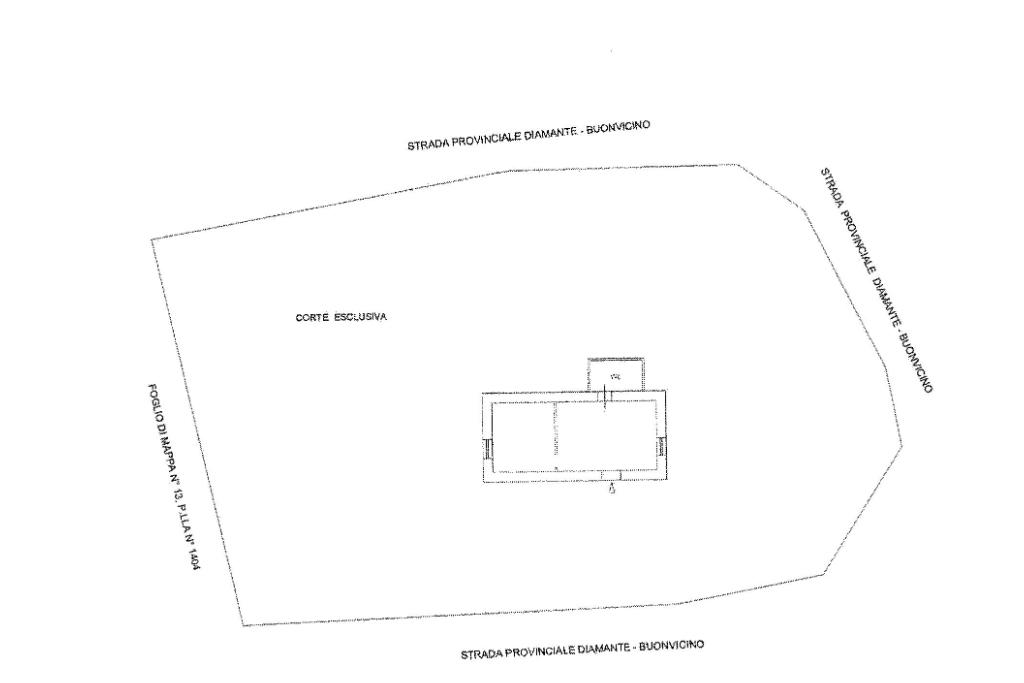
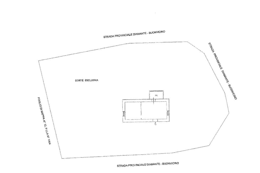
Locale Commerciale in vendita a Santa Maria del Cedro, all'interno del Parco Mirage.

Posizione strategica, a pochi passi dal mare e dai principali servizi

All’interno del rinomato Parco Mirage, proponiamo in vendita un locale commerciale di circa 46 mq, situato al piano terra, completamente ristrutturato e pronto all’uso.

L’immobile è composto da:

Un ampio vano principale

Un bagno finestrato

Una vetrina su strada, che garantisce ottima visibilità

Grazie alla disponibilità immediata e alla posizione privilegiata, l'immobile rappresenta una soluzione ideale per avviare attività commerciali di vario genere.

Per visionare la nostra proposta basta chiamare in agenzia e fissare un appuntamento. Inoltre per chi dovesse acquistarlo mediante l'ottenimento di un mutuo un team di esperti nel settore creditizio sarà in grado di trovare la giusta soluzione per ogni esigenza finanziaria: sono i nostri consulenti della Kiron, società di mediazione creditizia del Gruppo Tecnocasa. In qualsiasi momento una consulenza gratuita e personalizzata per i nostri clienti.

Mostra tutto

Nelle vicinanze

Trasporto pubblico Trasporto pubblico
Marcellina-Verbicaro
Marcellina-Verbicaro
2,6 Km
Trasporto pubblico
1,8 Km
Grisolia-Santa Maria
Grisolia-Santa Maria
1,5 Km
Scuole Scuole
Istituto Comprensivo Paolo Borsellino
2,1 Km
Farmacia Farmacia
Parafarmacia La Genziana
720 m
Farmacia
1,7 Km
Cavalieri
2,5 Km
Supermercati Supermercati
Alvama
2,6 Km
Negozi Negozi
Negozi
800 m
Bar Bar
Scacco Matto
710 m
Bar
860 m
Franco
2,6 Km
Ristoranti Ristoranti
Majorica Beach
1,4 Km
Mostra tutto

Caratteristiche

Rif.:
61086731
Piano:
Terra di 3
Totale piani:
3
Arredamento:
Assente
Condizionamento:
Assente
Ascensore:
No
Mostra tutto
Prezzo Prezzo
€ 45.000
Rata mutuo Rata mutuo
€ 210 / mese
Spese annue Spese annue
€ 0
Proponi il tuo prezzoProponi il tuo prezzo

Classe Energetica

Questo immobile è esente da classe energetica
Anno di costruzione:
1980
Riscaldamento:
Assente

Ti interessa visionare l'immobile?

Fissa un appuntamento  Fissa un appuntamento

Richiedi informazioni

Clicca su Leggi per aprire l'informativa
* Questi campi sono obbligatori

Calcola il tuo mutuo

Semplice e senza impegno
Anticipo

( % )
Mutuo

( % )

pochi semplici passi

inserisci i tuoi dati
Questionario completato
Grazie per aver richiesto un appuntamento senza impegno con un nostro Consulente del Credito e Assicurativo.

Hai inserito correttamente tutti i dati necessari e a breve riceverai una e-mail con un link da convalidare per inviare i tuoi dati.
Affiliato
Studio Diamante Srl
Via Carlo Alberto Dalla Chiesa, 2 87023 Diamante (CS)

Il nostro staff


  • Guerino Martino
    Affiliato
Via Carlo Alberto Dalla Chiesa, 2 87023 Diamante (CS)
Zona: Diamante
Mostra su mappa
Orari: MATTINA: 9:00 - 13:00 POMERIGGIO: 15:30 - 19:30
Affiliato
Studio Diamante Srl
Via Carlo Alberto Dalla Chiesa, 2 87023 Diamante (CS)

2025 Tecnocasa Franchising S.p.A. - P. IVA 08365160152 - Via Monte Bianco 60/A 20089 Rozzano (MI). Ogni agenzia ha un proprio titolare ed è autonoma. Privacy policy | Policy utilizzo | Cookie policy