Casa indipendente in vendita

Santa Maria Del Cedro, Via Tacciere
€ 55.000
4 locali 4 locali
110 Mq 110 Mq
2 bagni 2 bagni

Casa indipendente in vendita

Santa Maria Del Cedro, Via Tacciere

Descrizione annuncio

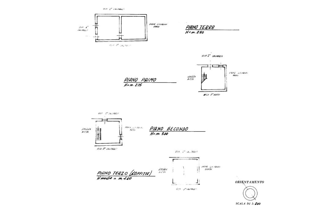
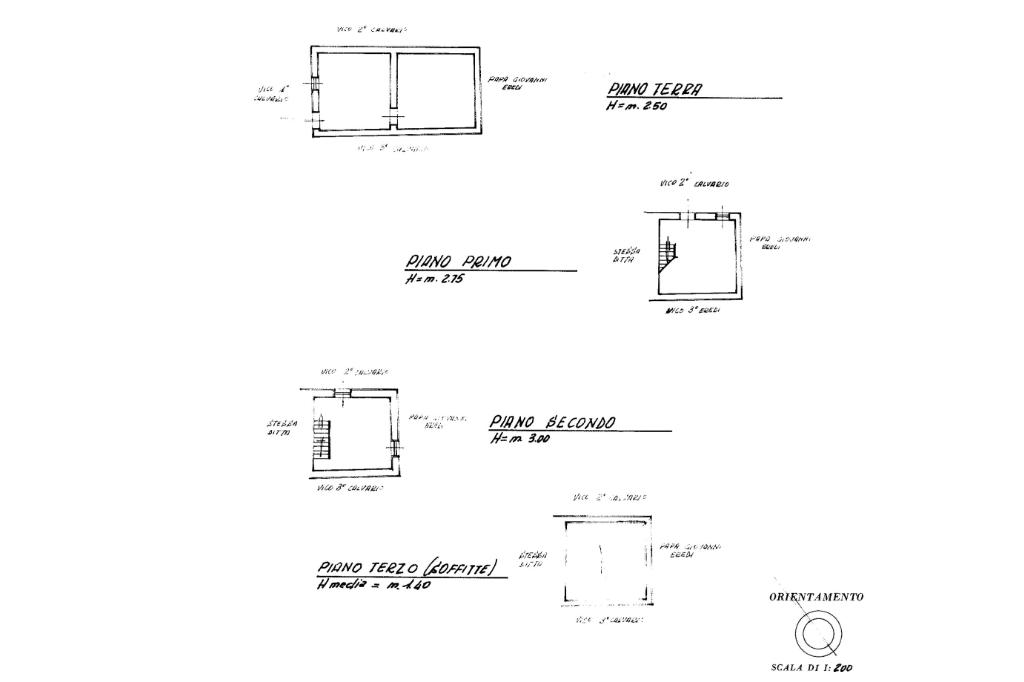
Nel centro storico di Santa Maria del Cedro, in via Tacceiere, proponiamo in vendita una casa indipendente composta da due unità speculari, di cui una rifinita e una allo stato rustico, con possibilità di fusione in un’unica abitazione.

La porzione rifinita si sviluppa su due livelli: al piano terra troviamo la zona giorno con bagno di servizio, mentre al piano superiore si trova la zona notte con una camera da letto matrimoniale, bagno, cabina armadio e un balcone con vista panoramica sul territorio comunale e scorcio di vista mare. La porzione allo stato rustico presenta la stessa distribuzione interna ed esposizione, offrendo la possibilità di essere completata secondo le proprie esigenze. Completa la proprietà un magazzino al piano seminterrato, ideale come deposito o locale accessorio. Soluzione ideale sia come abitazione principale che come investimento, con possibilità di realizzare due unità indipendenti o un’unica ampia residenza.

Per visionare la nostra proposta basta chiamare in agenzia e fissare un appuntamento. Inoltre per chi dovesse acquistarlo mediante l'ottenimento di un mutuo un team di esperti nel settore creditizio sarà in grado di trovare la giusta soluzione per ogni esigenza finanziaria: sono i nostri consulenti della Kiron, società di mediazione creditizia del Gruppo Tecnocasa. In qualsiasi momento una consulenza gratuita e personalizzata per i nostri clienti.


Non dimenticarti di seguirci anche sul nostro profilo instagram per rimanere sempre connesso sulle ultime novità: @tecnocasa_diamante.

Mostra tutto

Nelle vicinanze

Trasporto pubblico Trasporto pubblico
Marcellina-Verbicaro
Marcellina-Verbicaro
2,4 Km
Trasporto pubblico
1,5 Km
Grisolia-Santa Maria
Grisolia-Santa Maria
1,6 Km
Scuole Scuole
Istituto Comprensivo Paolo Borsellino
1,2 Km
Farmacia Farmacia
Cavalieri
110 m
Farmacia
1,6 Km
Parafarmacia La Genziana
2,6 Km
Supermercati Supermercati
Alvama
2,1 Km
Negozi Negozi
Negozi
2,3 Km
Bar Bar
Franco
110 m
Bar
2,3 Km
Scacco Matto
2,9 Km
Ristoranti Ristoranti
Majorica Beach
2,9 Km
Mostra tutto

Caratteristiche

Rif.:
61119487
Piano:
2 di 2 (Piano su più livelli)
Balconi:
1
Camere da letto:
2
Arredamento:
Assente
Condizionamento:
Assente
Mostra tutto
Prezzo Prezzo
€ 55.000
Rata mutuo Rata mutuo
€ 259 / mese
Spese annue Spese annue
€ 0
Proponi il tuo prezzoProponi il tuo prezzo

Classe Energetica

Questo immobile è esente da classe energetica
Anno di costruzione:
1967
Riscaldamento:
Assente

Ti interessa visionare l'immobile?

Fissa un appuntamento  Fissa un appuntamento

Richiedi informazioni

Clicca su Leggi per aprire l'informativa
* Questi campi sono obbligatori

Calcola il tuo mutuo

Semplice e senza impegno
Anticipo

( % )
Mutuo

( % )

pochi semplici passi

inserisci i tuoi dati
Questionario completato
Grazie per aver richiesto un appuntamento senza impegno con un nostro Consulente del Credito e Assicurativo.

Hai inserito correttamente tutti i dati necessari e a breve riceverai una e-mail con un link da convalidare per inviare i tuoi dati.
Affiliato
Studio Diamante Srl
Via Carlo Alberto Dalla Chiesa, 2 87023 Diamante (CS)

Il nostro staff


  • Guerino Martino
    Affiliato
Via Carlo Alberto Dalla Chiesa, 2 87023 Diamante (CS)
Zona: Diamante
Mostra su mappa
Orari: MATTINA: 9:00 - 13:00 POMERIGGIO: 15:30 - 19:30
Affiliato
Studio Diamante Srl
Via Carlo Alberto Dalla Chiesa, 2 87023 Diamante (CS)

2026 Tecnocasa Franchising S.p.A. - P. IVA 08365160152 - Via Monte Bianco 60/A 20089 Rozzano (MI). Ogni agenzia ha un proprio titolare ed è autonoma. Privacy policy | Policy utilizzo | Cookie policy