Bifamiliare in vendita

Santa Maria Del Cedro, Via Degli Ulivi
€ 290.000
Prezzo aggiornato
194 Mq 194 Mq
6 bagni 6 bagni

Bifamiliare in vendita

Santa Maria Del Cedro, Via Degli Ulivi

Descrizione annuncio

Nel comune di Santa Maria del Cedro in Via degli Ulivi, proponiamo in vendita una spaziosa bifamiliare, ideale per chi cerca ampi spazi e comfort, a pochi passi dal mare.

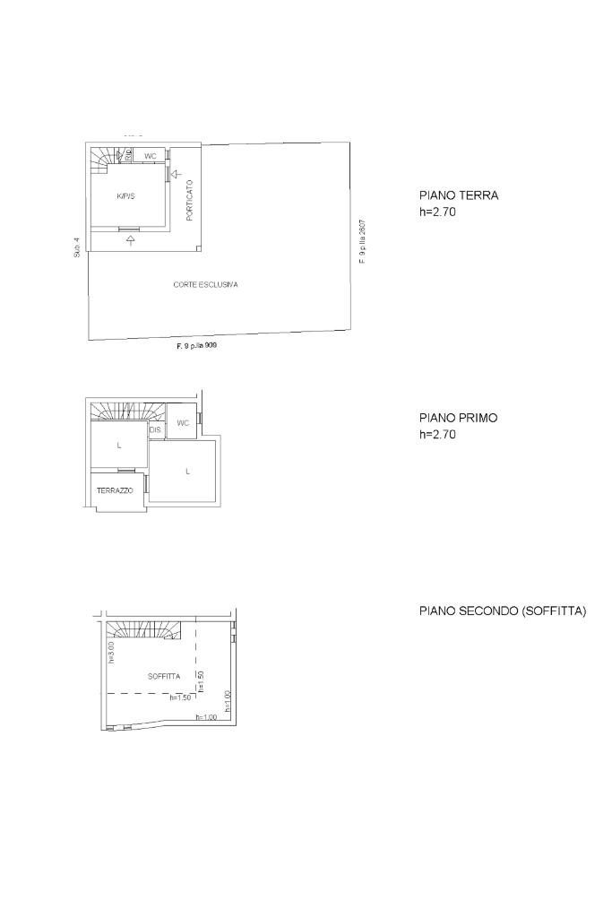
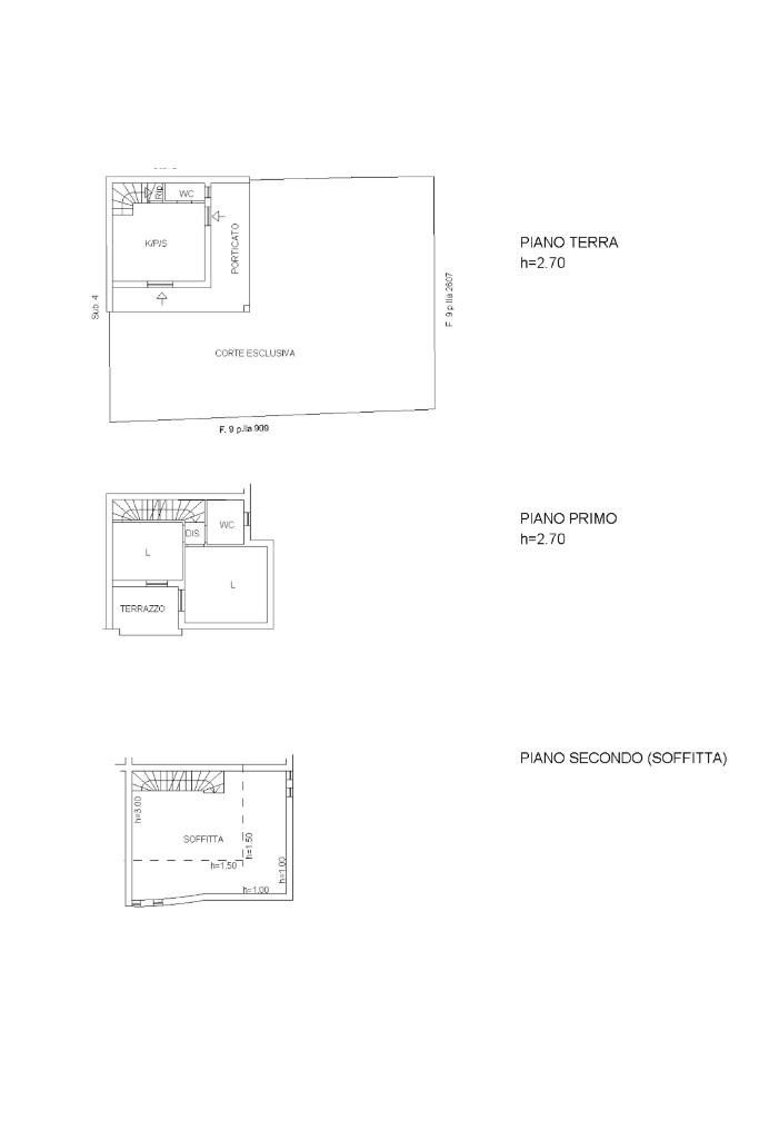
L'immobile offre una disposizione funzionale degli ambienti,La proprietà comprende sei camere da letto, perfette per accogliere una famiglia numerosa o per ospitare amici e parenti. Sono presenti sei bagni, garantendo praticità e privacy per tutti gli occupanti. La casa dispone di due balconi e quattro terrazzi, che offrono spazi esterni per momenti di relax e convivialità. Completano la proprietà due ulteriori camere, che possono essere adibite a studio, sala hobby o altro secondo le esigenze personali.

Questa bifamiliare rappresenta un'opportunità unica per chi desidera vivere in una zona tranquilla, senza rinunciare alla comodità di ampi spazi abitativi.

Per visionare la nostra proposta basta chiamare in agenzia e fissare un appuntamento. Inoltre per chi dovesse acquistarlo mediante l'ottenimento di un mutuo un team di esperti nel settore creditizio sarà in grado di trovare la giusta soluzione per ogni esigenza finanziaria: sono i nostri consulenti della Kiron, società di mediazione creditizia del Gruppo Tecnocasa. In qualsiasi momento una consulenza gratuita e personalizzata per i nostri clienti.


Non dimenticarti di seguirci anche sul nostro profilo instagram per rimanere sempre connesso sulle ultime novità: @tecnocasa_diamante.

Mostra tutto

Nelle vicinanze

Trasporto pubblico Trasporto pubblico
Marcellina-Verbicaro
Marcellina-Verbicaro
1,9 Km
Trasporto pubblico
2,2 Km
Grisolia-Santa Maria
Grisolia-Santa Maria
2,0 Km
Scuole Scuole
Istituto Comprensivo Paolo Borsellino
1,8 Km
Farmacia Farmacia
Parafarmacia La Genziana
70 m
Farmacia
1,9 Km
Cavalieri
2,5 Km
Supermercati Supermercati
Alvama
2,0 Km
Negozi Negozi
Negozi
1,4 Km
Bar Bar
Bar
290 m
Scacco Matto
320 m
Franco
2,7 Km
Ristoranti Ristoranti
Majorica Beach
2,2 Km
Mostra tutto

Caratteristiche

Rif.:
61163168
Piano:
Basso di 3
Totale piani:
3
Balconi:
2
Terrazzi:
4
Camere da letto:
6
Mostra tutto
Prezzo Prezzo
€ 290.000
Rata mutuo Rata mutuo
€ 1.378 / mese
Spese annue Spese annue
€ 100
Proponi il tuo prezzoProponi il tuo prezzo

Classe Energetica

Questo immobile è esente da classe energetica
Anno di costruzione:
2011
Riscaldamento:
Assente

Prezzo ridotto di €1 (7%%)

Ti interessa visionare l'immobile?

Fissa un appuntamento  Fissa un appuntamento

Richiedi informazioni

Clicca su Leggi per aprire l'informativa
* Questi campi sono obbligatori

Calcola il tuo mutuo

Semplice e senza impegno
Anticipo

( % )
Mutuo

( % )

pochi semplici passi

inserisci i tuoi dati
Questionario completato
Grazie per aver richiesto un appuntamento senza impegno con un nostro Consulente del Credito e Assicurativo.

Hai inserito correttamente tutti i dati necessari e a breve riceverai una e-mail con un link da convalidare per inviare i tuoi dati.
Affiliato
Studio Diamante Srl
Via Carlo Alberto Dalla Chiesa, 2 87023 Diamante (CS)

Il nostro staff


  • Guerino Martino
    Affiliato
Via Carlo Alberto Dalla Chiesa, 2 87023 Diamante (CS)
Zona: Diamante
Mostra su mappa
Orari: MATTINA: 9:00 - 13:00 POMERIGGIO: 15:30 - 19:30
Affiliato
Studio Diamante Srl
Via Carlo Alberto Dalla Chiesa, 2 87023 Diamante (CS)

2026 Tecnocasa Franchising S.p.A. - P. IVA 08365160152 - Via Monte Bianco 60/A 20089 Rozzano (MI). Ogni agenzia ha un proprio titolare ed è autonoma. Privacy policy | Policy utilizzo | Cookie policy